BRADBOURNE

3,700 SQFT | A 4 storey, 5 bedroom victorian terraced ‘lion house’ including basement

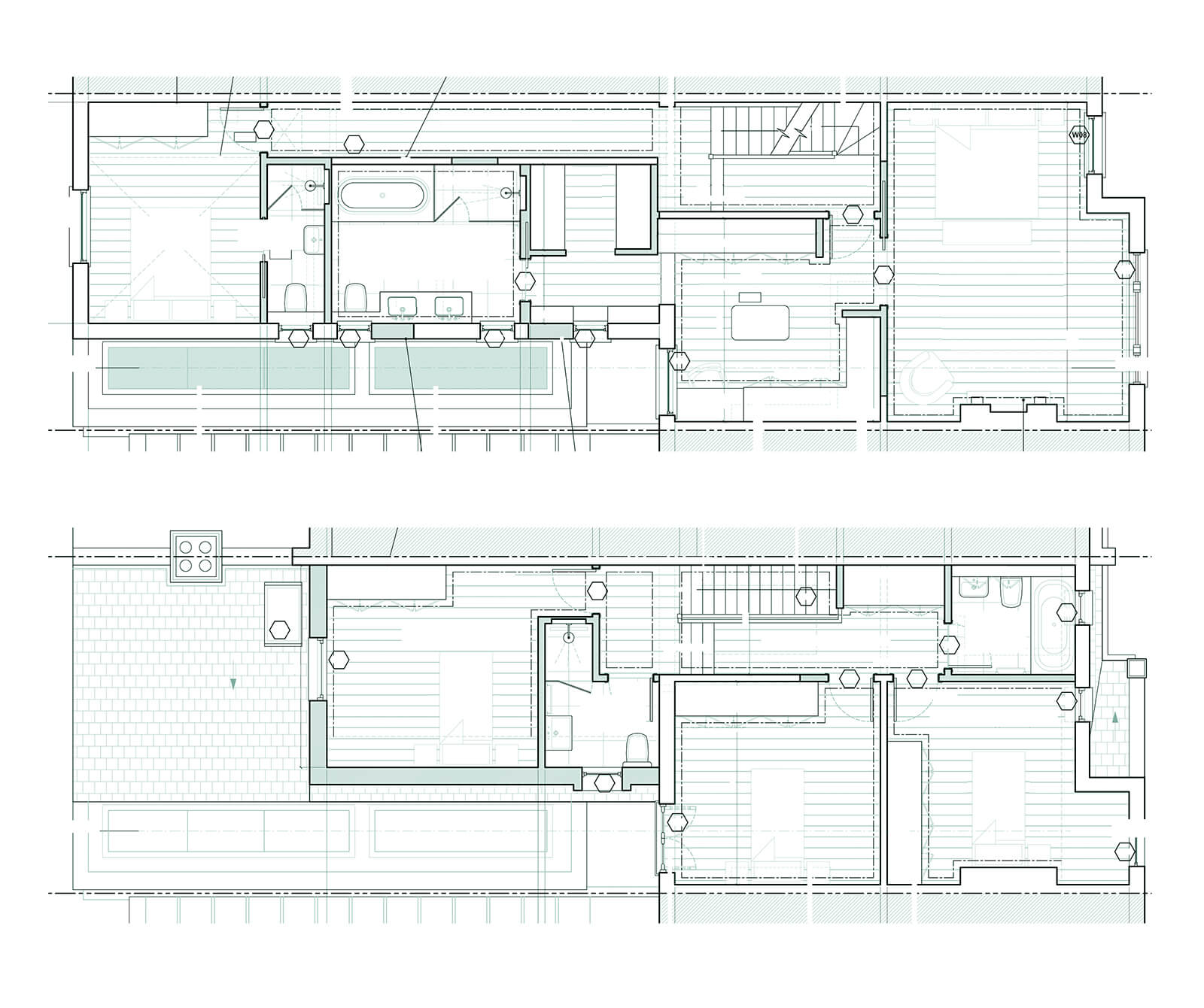
Our project brief was to create an open-plan home for a young family, fusing traditional and contemporary elements in a cohesive, elegant, yet practical way. A luxurious master bedroom suite with his and hers dressing rooms and the application of bespoke features such as textured fabric wallpaper, custom timbers and handmade zellige tiling throughout the redesign of the property added the personal bespoke touches that are such an important part of the Icon identity.

Works included the excavation of a basement under the entire footprint of the property, a rear and 2nd-floor rear extension and a comprehensive internal reconfiguration. This extended space allowed us to create a generous kitchen and formal living room on the ground floor and add a large open-plan family room, playroom and office to the basement.

Contractor: RS Construction
Kitchen: 202 Design